9 Palomino Road

Auldana

6

Beds

5

Baths

4

Cars

Best offers by 5pm Wednesday 17th March 2021 (USL)

Live the high life in stunning residence

Boasting breathtaking views across the Adelaide skyline to Gulf St Vincent, this spectacular custom residence shines as a sparkling gem in the exclusive foothill suburb of Auldana.

Both rare in its location and build quality, this expansive home provides a sophisticated lifestyle for the most discerning buyer.

This property truly dazzles from every angle, from the first steps through the imposing entrance to two beautifully featured luxury kitchens and the terraced pool area and surrounds that maximise the home’s amazing location.

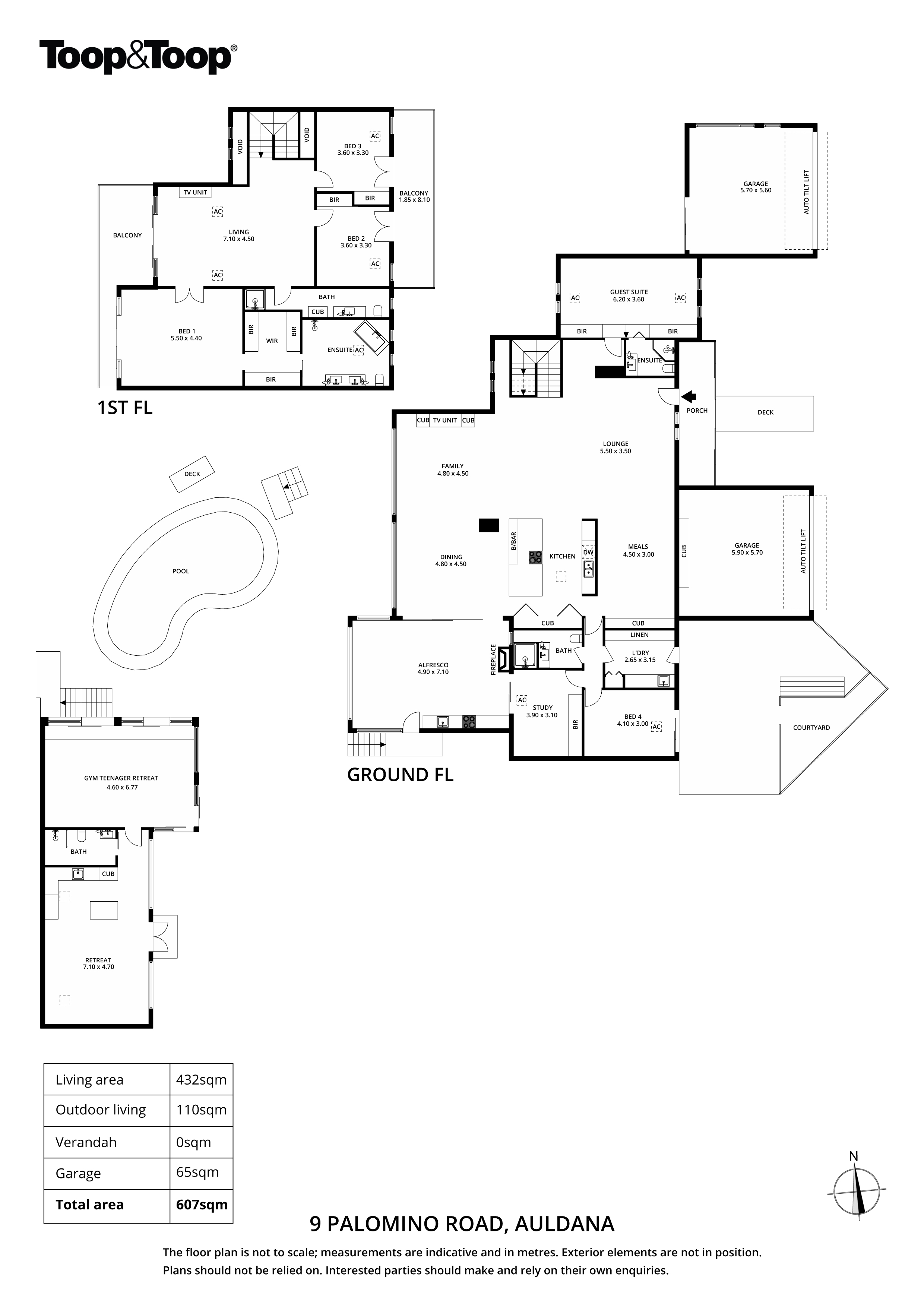
Sited on a generous 1265m2 (approx.), the home provides spacious indoor and outdoor luxury over three levels.

There are up to six bedrooms, four living areas and six sumptuous bathrooms, each finished to the highest level.

The huge decked outdoor entertaining area with heated swim spa is among the home’s many highlights, providing the perfect space to soak up one of Adelaide’s most inspiring vistas.

Other outdoor features include a workshop/utility room, as well as two double garages housed under the main roof.

With quality schools such as Pembroke College and St Peter's Girl College within easy reach and Norwood’s vibrant Parade shopping precinct also nearby, this outstanding property presents a rare lifestyle opportunity.

Ryan Yuan looks forward to welcoming you to this magnificent offering.

Highlights include:

- Magnificent view encompassing Adelaide CBD and coastline
- Up to six bedrooms or five bedrooms plus a study
- Two gourmet kitchens, offering induction cooking and gas wok fire cooking
- Ground floor apartment suitable for teenager or young adult
- Mature gardens with automated irrigation
- Garaging for four vehicles, with side-by-side double garages with tilt up doors
- Circular driveway
- 15 KW solar power with Tesla power wall 2 battery
- Easy access to Norwood Parade shopping precinct
- Only five-minute drive to St Peter Girls and Pembroke College

For more info, please contact Ryan Yuan 0422 429 939.

Sold on Mar 14, 2021

Property Information

Built 2008

Land Size 1265.00 sqm approx.

Council Rates $3327.60 pa approx

ES Levy $316.65

Water Rates $372.07 pq approx

CONTACT AGENT

RYAN YUAN

Sales Partner

0422 429 939
About me

Neighbourhood Map

Schools in the Neighbourhood

School Distance Type

TOOP VAULT

Find properties before they hit the market.