Copied to clipboard

8 Ray Street

Para Hills

3

Beds

1

Bath

3

Cars

A Perfect Blend of Comfort and Family Convenience

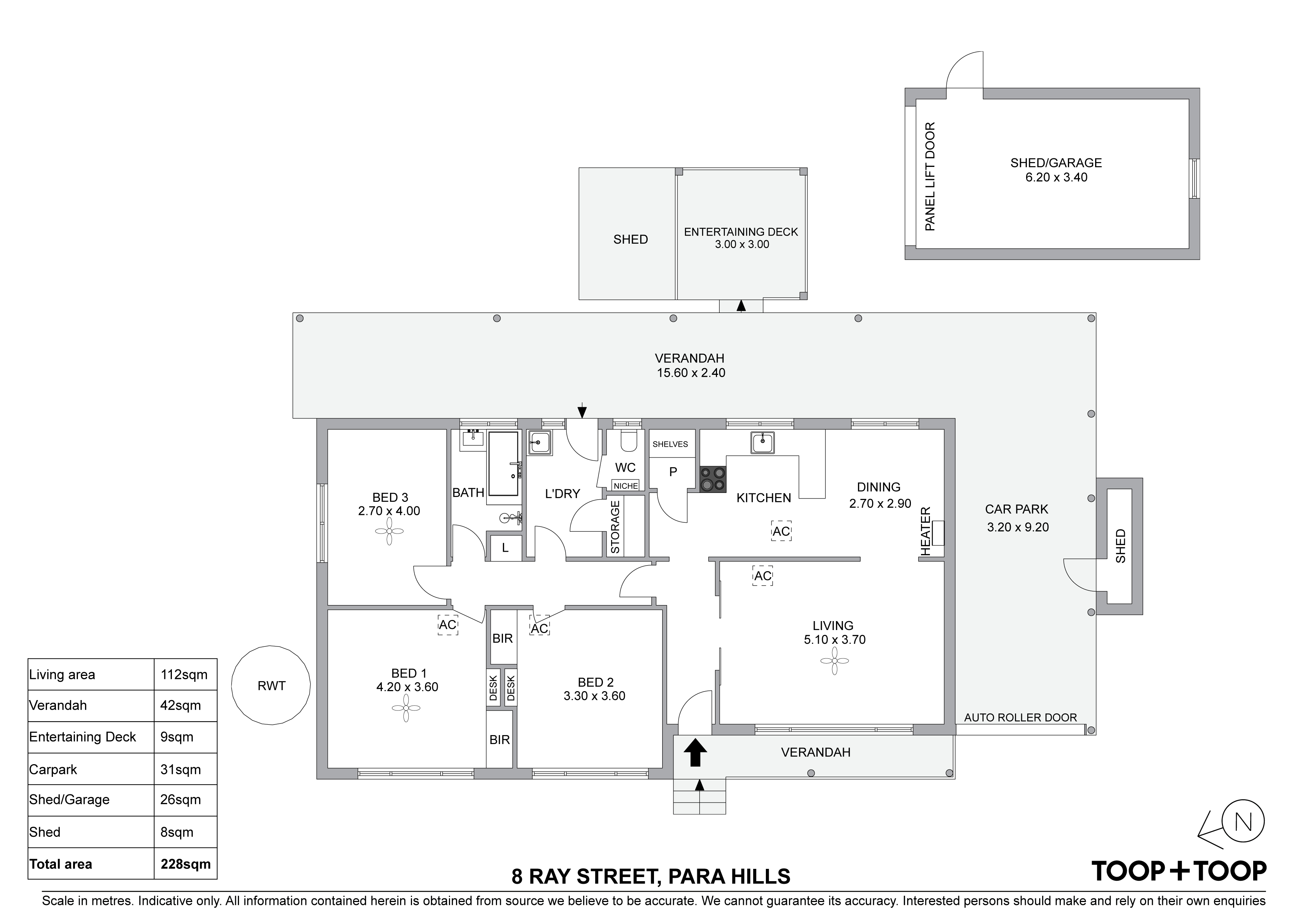
Appealing to a myriad of home buyers as a thriving home base or a savvy residential investment, this beautifully presented property boasts solid bones and a practical flow through design. Recently updated in fresh and contemporary neutrals, the home is situated on an easy-care allotment of approximately 585sqm. Well positioned within this popular northern enclave, there is easy access to a range of nearby parks and sporting facilities, as well as a quick drive to many retail outlets and dining options.

Features to love:
- Torrens titled family home on a generous allotment of approximately 585sqm
- Freshly carpeted and painted throughout
- 3 spacious bedrooms, two with BIR
- Updated kitchen with generous cabinetry and pantry
- Serviceable bathroom with bath
- Laundry with external access and separate toilet
- Electric security shutters to street-facing rooms
- Ceiling fans and updated LED lights throughout
- Bonaire evaporative air conditioning with gas heater in living area
- Secure carport with auto door, with a further garage/shed in rear garden
- Outside timber-decked gazebo offering a shaded area for dining, relaxing and entertaining
- Solar panels

Location Highlights
Shopping and Amenities
A quick drive to the many retail outlets and dining options in Para Hills Shopping Centre, Ingle Farm Shopping Centre and Westfield Tea Tree Plaza.

Leisure
Within a short stroll to many parks and reserves including Kelvin Road Reserve, the playgrounds at Broadstock Green, and Paddocks Reserve.

Schools
Zoned to Para Hills High School, and a short walk to North Ingle and Para Hills School with other schooling options including the Good Shepherd Lutheran School.

Sold on May 21, 2023

Auction Time

Property Information

Built 1970

Land Size 585.00 sqm approx.

Council Rates $1,465.90pa

ES Levy $112.85 pa approx

Water Rates $146.65pq

CONTACT AGENTS

GENA NASH

Sales Partner

0408 828 415
About me

LEW TOOP

Sales Partner + Auctioneer

0419 888 893
About me

Neighbourhood Map

Schools in the Neighbourhood

School Distance Type

TOOP VAULT

Find properties before they hit the market.