5 / 167 Payneham Road

St Peters

3

Beds

2

Baths

3

Cars

Iconic Jam Factory warehouse living on the City fringe

A well-known SA landmark, the Jam Factory offers boutique living, a warehouse conversion ahead of its time with an adaptable floor plan set over three levels. The tranquil communal gardens are a sanctuary, complete with sculptured gardens and a pond, a private and secure urban oasis for residents.

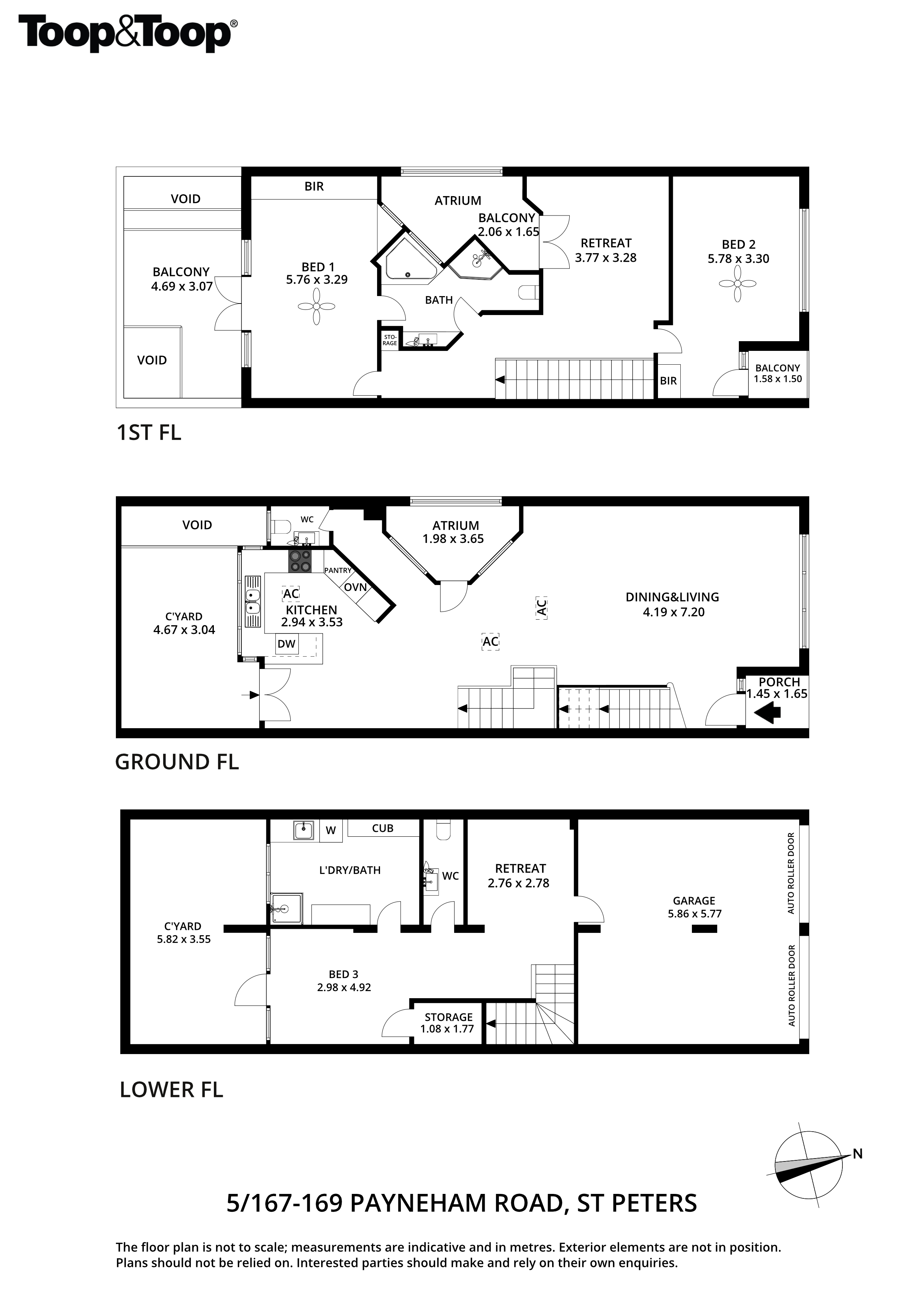
Stepping into the heart of the home you will find an entire floor dedicated to open plan living, with floating floorboards, magnificent sky windows highlighting the sun filled piazza and architectural features abound, including a glass-filled atrium. This floor is an entertainer’s delight, spacious living and dining, and the kitchen with plenty of cupboard space, a dishwasher and gas cooking overlooking the decked courtyard.

The upper level is home to two spacious bedrooms, with spectacular garden views to the western bedroom with its arched window and private balcony, and the master housing a spacious built in wardrobe and timber French doors opening to its own private balcony with Vergola perfect for your morning coffee. A luxurious spa bathroom and additional living room or quiet study nook complete this level.

Downstairs, the options are endless. A guest’s delight, with their own studio- style living, bathroom and courtyard, complete with laundry and internal access from the double garage. Alternatively, a home office, teenagers retreat or studio, this can be entirely catered to your needs.

Ideally located in prestigious St Peters, with the Avenues shopping centre directly across the road and the Parade & Magill Road only a short drive with their endless dining options.

What we love about this home:

• Ducted vacuum
• Ducted reverse cycle air conditioning to upper and middle level
• Brick feature walls throughout
• Alarm system and intercom
• Roller blinds throughout
• Laundry chute servicing all levels
• Multiple layout options, living areas on all floors with courtyards
• Private gated community
• Your own piece of Adelaide’s history, with all the mod cons and ideal city fringe location
• Blue-chip tightly held location, short drive to the CBD
• Double automatic garage with internal access, allocated parking for a third vehicle

**Entry is via First Lane, if driving park in Westminster Street, short stroll down First Lane.**

FEATURES

Air Conditioning
Balcony
Built In Robes
Courtyard
Dishwasher
Intercom
Outdoor Entertaining
Remote Garage
Secure Parking
Study

Sold on Mar 21, 2021

$800,000

Property Information

Built 1996

Land Size 109.00 sqm approx.

Council Rates $1,608.78 pa approx.

ES Levy $121.75 pa approx.

Water Rates $210.16 pq approx.

CONTACT AGENTS

BRONTE MANUEL

Owner, Director + Auctioneer at TOOP+TOOP

0439 828 882
About me

Neighbourhood Map

Schools in the Neighbourhood

School Distance Type

TOOP VAULT

Find properties before they hit the market.