33 Balcombe Avenue

Findon

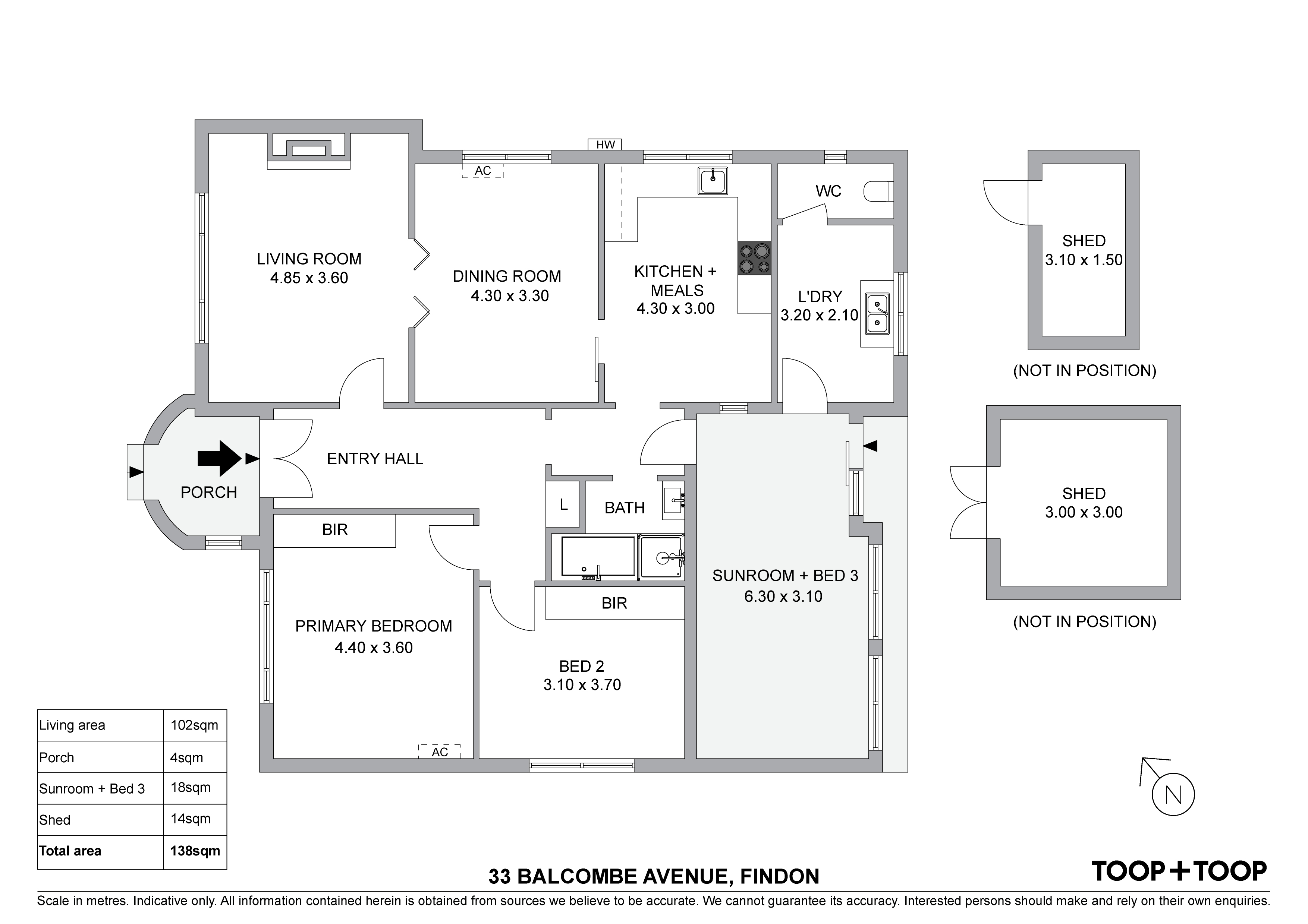
2

Beds

1

Bath

2

Cars

Sold at Auction by Jake Theo - TOOP+TOOP

For more information on this sale, or the market in general, feel free to contact Jake Theo of TOOP+TOOP® Real Estate anytime on 0422 959 650.

Sold on Dec 13

$859,000

Auction Time

Property Information

Built 1955

Land Size 444.00 sqm approx.

Council Rates $1391.55pa

ES Levy $140.30pa

Water Rates $181.13pq

CONTACT AGENTS

JAKE THEO

Sales Partner

0422 959 650
About me

KRISTEN GOEDECKE

Sales Partner

0401 066 121
About me

Neighbourhood Map

Schools in the Neighbourhood

School Distance Type

TOOP VAULT

Find properties before they hit the market.