Copied to clipboard

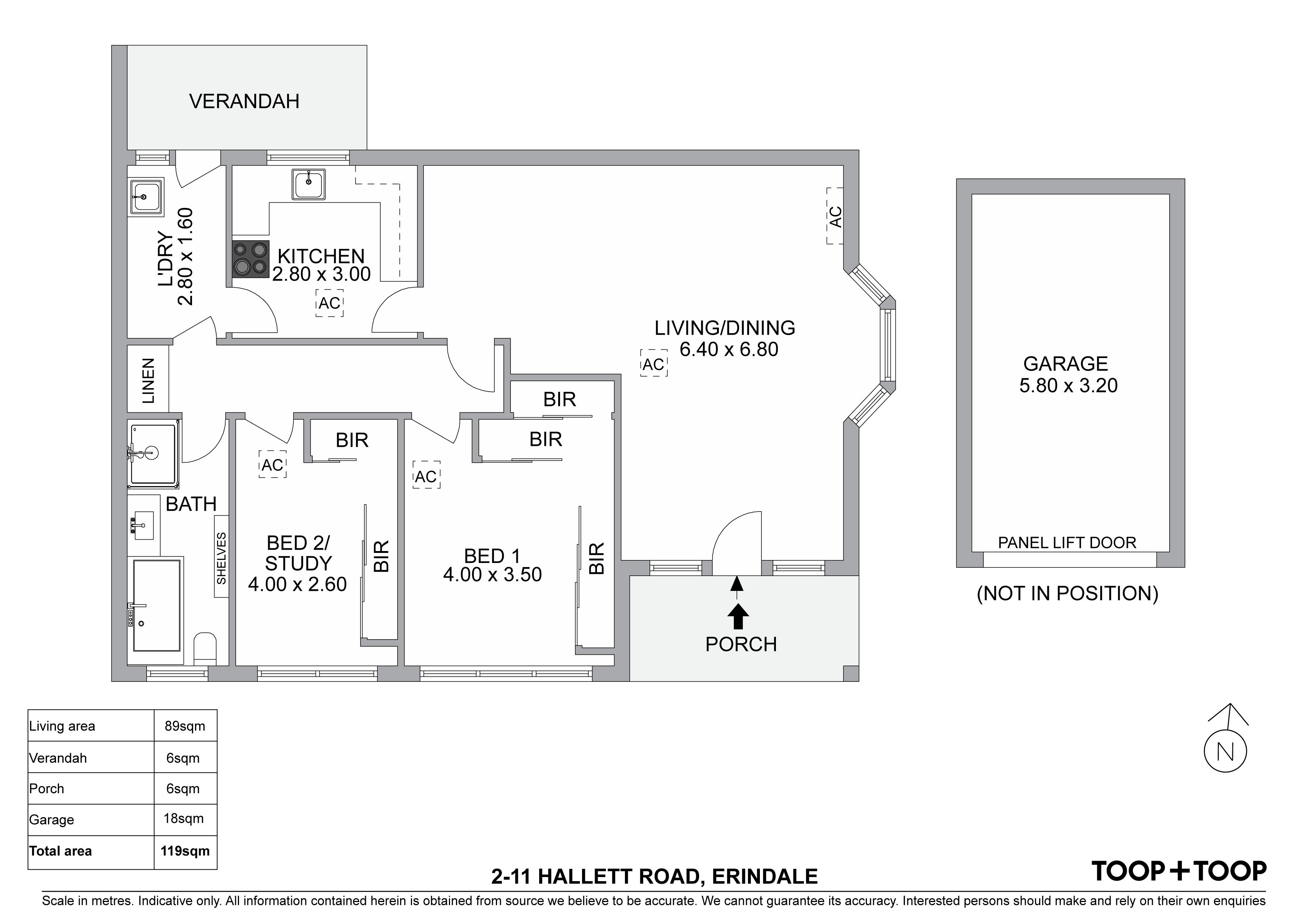
2 / 11 Hallett Road

Erindale

2

Beds

1

Bath

1

Car

SOLD by TOOP+TOOP REAL ESTATE

For more information on the sale of this property,

please contact TOOP+TOOP's Director of Sales,

Bronte Manuel on +61 0439 828 882

FEATURES

Built In Robes
Evaporative Cooling
Floorboards

Sold on Feb 15, 2022

$530,000

Property Information

Built 1964

Council Rates $913.45pa approx.

ES Levy $122.70pa approx.

Water Rates $150.51pq approx.

CONTACT AGENTS

TOOP+TOOP

TOOP+TOOP Real Estate

p

BRONTE MANUEL

Owner, Director + Auctioneer at TOOP+TOOP

0439 828 882
About me

Neighbourhood Map

Schools in the Neighbourhood

School Distance Type

TOOP VAULT

Find properties before they hit the market.